武蔵村山市伊奈平5丁目中古戸建
物件情報
武蔵村山市伊奈平5丁目中古戸建 の物件概要
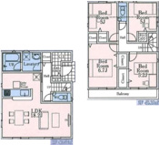
【中古一戸建】※地図上に表示される物件の位置は付近住所に所在することを表すものであり、実際の物件所在地とは異なる場合がございます。
武蔵村山市伊奈平5丁目中古戸建の販売物件情報
00件
最近見た物件
00件
検討リスト
株式会社ランディックス > 物件一覧 > 武蔵村山市伊奈平5丁目中古戸建
武蔵村山市伊奈平5丁目中古戸建
物件情報
武蔵村山市伊奈平5丁目中古戸建 の物件概要
【中古一戸建】※地図上に表示される物件の位置は付近住所に所在することを表すものであり、実際の物件所在地とは異なる場合がございます。
武蔵村山市伊奈平5丁目中古戸建の販売物件情報

武蔵村山市伊奈平5丁目中古戸建に関するこだわり条件から探す