昭島市上川原町1丁目 中古戸建
青梅線「昭島」駅より徒歩9分♪タマホーム株式会社施工の注文住宅で間取りは4LDK+WIC♪光華小学校、清泉中学校学区域のお家はいかがですか♪注文住宅ならではの広々とした玄関ホールは来客の時も安心♪オール電化仕様♪カースペース2台分あり(※車種による)♪現在空家となりますので、詳しい資料や物件内覧などは担当:小林までお気軽にお問い合わせください♪
ローンシミュレーションこの物件を購入した場合の、月々の支払い価格の一例です。借り入れを保証するものではございません。
- 返済期間
-
- 金利
-
- ボーナス時の増額(1回分)
-
- 借入金額:
-
- 頭金:
-

- 毎月の返済額:
(※元利均等方式 金利5.00%まで ※返済年数5~50年まで入力できます)
(※ボーナスは年2回で計算しています。1000万円まで入力できます)
(※物件購入時、その他諸費用が発生する場合がございます)
担当者のコメント 三善信明

- 青梅線「昭島」駅より徒歩9分♪タマホーム株式会社施工の注文住宅で間取りは4LDK+WIC♪光華小学校、清泉中学校学区域のお家はいかがですか♪注文住宅ならではの広々とした玄関ホールは来客の時も安心♪オール電化仕様♪カースペース2台分あり(※車種による)♪各居室には収納もあり、キッチンパントリーや床下収納庫、階段下収納や2F廊下に収納庫、2F洋室にはウォークインクローゼットもあり収納スペースが充実♪リビングの隣は和室になっており、来客の際も快適に過ごせます♪IHクッキングヒーター、食洗器付きの対面式システムキッチン♪備え付けのカップボードもあります♪現在空家となりますので、詳しい資料や物件内覧などは担当:小林までお気軽にお問い合わせください♪
ポイント・特徴
物件概要
【中古一戸建】 物件番号:100928040 情報更新日:2026年02月16日 次回更新予定日:2026年03月02日| 所在地 | 東京都昭島市上川原町1丁目 | ||
|---|---|---|---|
| 交通 | |||
| 間取り/詳細 |
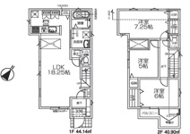
4LDK/ 4LDK+ウォークインクローゼット |
建物面積(坪数) | 118.00㎡(35.69坪) |
| 価格 | 4,180万円 | ||
| 駐車場/月額料金 | 有/- | ||
| 土地の敷金/保証金 | -/- | 借地料/借地期間 | -/- |
| 土地権利 | 所有権 | 土地面積(坪数) | 180.86㎡(54.70坪) |
| 傾斜地部分面積 | - | 路地状敷地 | - |
| 私道負担面積/セットバック | -/無 | 高圧線下面積 | - |
| 地目/地勢 | 宅地/平坦 | 接道状況 | 一方(南東 公道 4.5m 間口 4.0m) |
| 建ぺい率/容積率 | 40%/80% | 用途地域 | 第一種低層住居専用 |
| 都市計画 | 市街化区域 | 種別/構造 | 中古一戸建/木造 |
| 階建 | 2階建 | 築年月(築年数) | 2009年 1月 (築17年) |
| 総区画数/販売区画数 | -/- | 向き | - |
| 現況 | 空家 | その他の法令上の制限 | - |
| 取引態様/引渡時期 | 専属専任媒介/相談 | 建築確認番号 | - |
| 物件番号 | 100928040 | 取引条件の有効期限 | 2026年03月02日 |
| 設備条件 |
|
||
| 備考 | タマホーム株式会社施工のメーターモジュール♪リビングの隣は和室になっており、来客の際も快適に過ごせます♪IHクッキングヒーターの対面式システムキッチン♪備え付けのカップボードもあります♪現在空家となりますので、詳しい資料や物件内覧などは担当:小林までお気軽にお問い合わせください♪ | ||
| 設備(その他) | オール電化住宅 | ||
| 取扱会社 |
|
||
※地図上に表示される物件の位置は付近住所に所在することを表すものであり、実際の物件所在地とは異なる場合がございます。














